haus flüehli-mühlestutz, schwarzenburg
mfh wellenried, schwarzenburg
stall, valendas
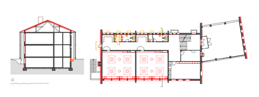
schulhaus tännlenen, mamishaus
erweiterung gilgen door systems, schwarzenburg
mfh dorfplatz, schwarzenburg
werkliste
k+v architekten gmbh
dorfplatz 20
3150 schwarzenburg
Tel: +41 31 732 04 04
claudia.keller@kv-arch.ch